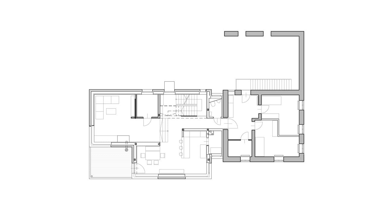
Ein bestehendes kleines Wohnhaus mit einfachem Satteldach wird um ein XL Double in Holzbauweise erweitert. Dadurch entsteht eine großzügige Wohnebene im Obergeschoss. Das Erdgeschoss kann neben den Funktionen Parkierung und Technikbereich zur Gänze als Büro- oder Geschäftsfläche genutzt werden.





